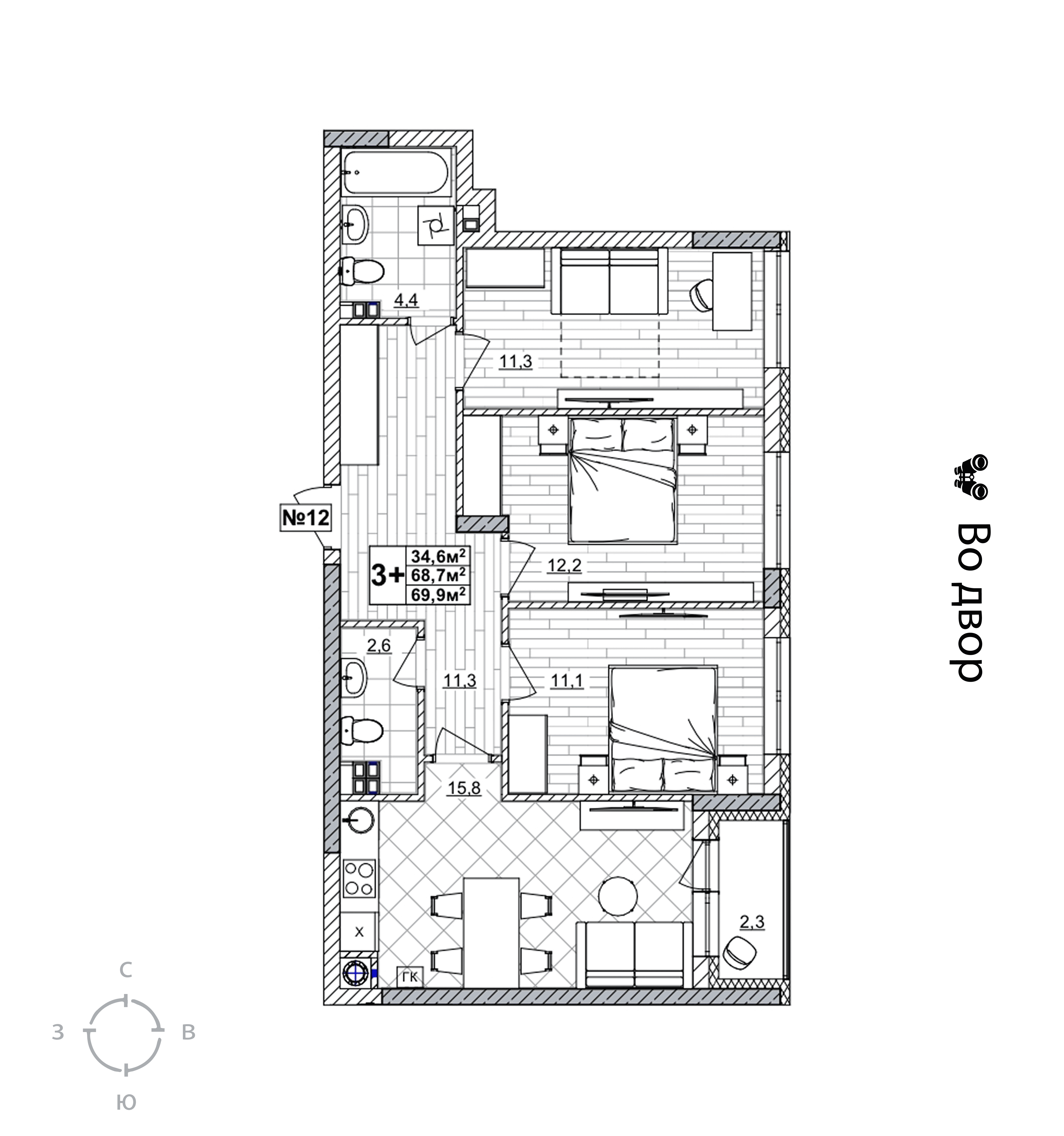
Общая информация
В продаже 3-комнатная квартира в новостройке жилого комплекса "Смородина" на 2 этаже, общая площадь69.9 м.кв., кухня 15.8 м.кв. Жилой комплекс располагается по адресу Зеленховоская-Парышевская-Ореховская, 2. Стоимость данной квартиры составляет 10 990 000 рублей. На нашем сайте DOMEX, Вы можете оставить бесплатную on-line заявку на это предложение и с Вами свяжется напрямую застройщик.
Характеристики
| ЖК | ННДК |
|---|---|
| Комнат | 3 |
| Цена | 10 990 000 руб. |
| Площадь | 69.9 кв.м. |
| Адрес | Зеленховоская-Парышевская-Ореховская, 2 |
| Жилая площадь | 34.6 кв.м. |
| Площадь кухни | 15.8 кв.м. |
